一、采购项目信息
1. 项目名称:华中师范大学西区国际创新街区西式餐饮合作经营项目
2. 项目编号:OSSC04
3. 项目概况:
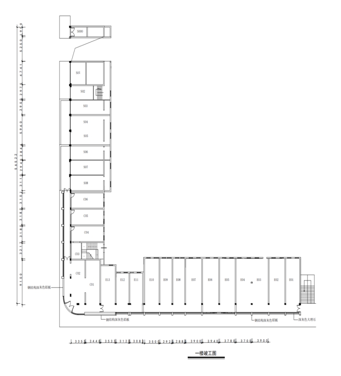
范围:华中师范大学西区国际创新街区一楼S03、S04、S05店铺,总面积共计约100㎡;(详细参考平面图)
模式:邀标竞比形式引入西式餐饮项目,合作经营,共同管理;
要求:
1、业态为西式餐饮(简餐)类;
2、具备五年以上西式餐饮行业经营资历;
3、经营方需按总营收额(完税后)缴纳提点作为管理费,提点比率不低于5%,保底管理费金额不低于12万元/年;
4.邀请您单位参加项目比选范围及内容:
S03~S05:西式餐饮类----(项目编号OSSC04)
服务期:5年(服务期间经营方如无违约行为,到期后自动续约5年)
二、比选响应文件递交截止时间及地点
1.响应函件发送邮箱:1577829917@qq.com
联系电话:朱老师 13329999400
2.截止时间:2022年7月12日10:00时(北京时间)
超过截止时间未收到文件,视为不响应本次比选邀请
三、比选响应文件开启时间及地点
1. 开启时间:2022年07月15日15:00时(北京时间)
2. 开启地点:武汉市洪山区华中师范大学教育培训大楼二楼国际教育部会议室
比选人联系方式:
名 称:湖北华中师大自费出国留学服务中心
地 址:湖北省武汉市洪山区华中师范大学教育培训大楼二楼
四、发布信息媒介
本公告在湖北华中师大自费出国留学服务中心(http://liuxue.ccnu.edu.cn/)网站上发布。
红线标注范围为参考铺面位置:

项目平面附图
湖北华中师大自费出国留学服务中心
2022年7月9日
分享至